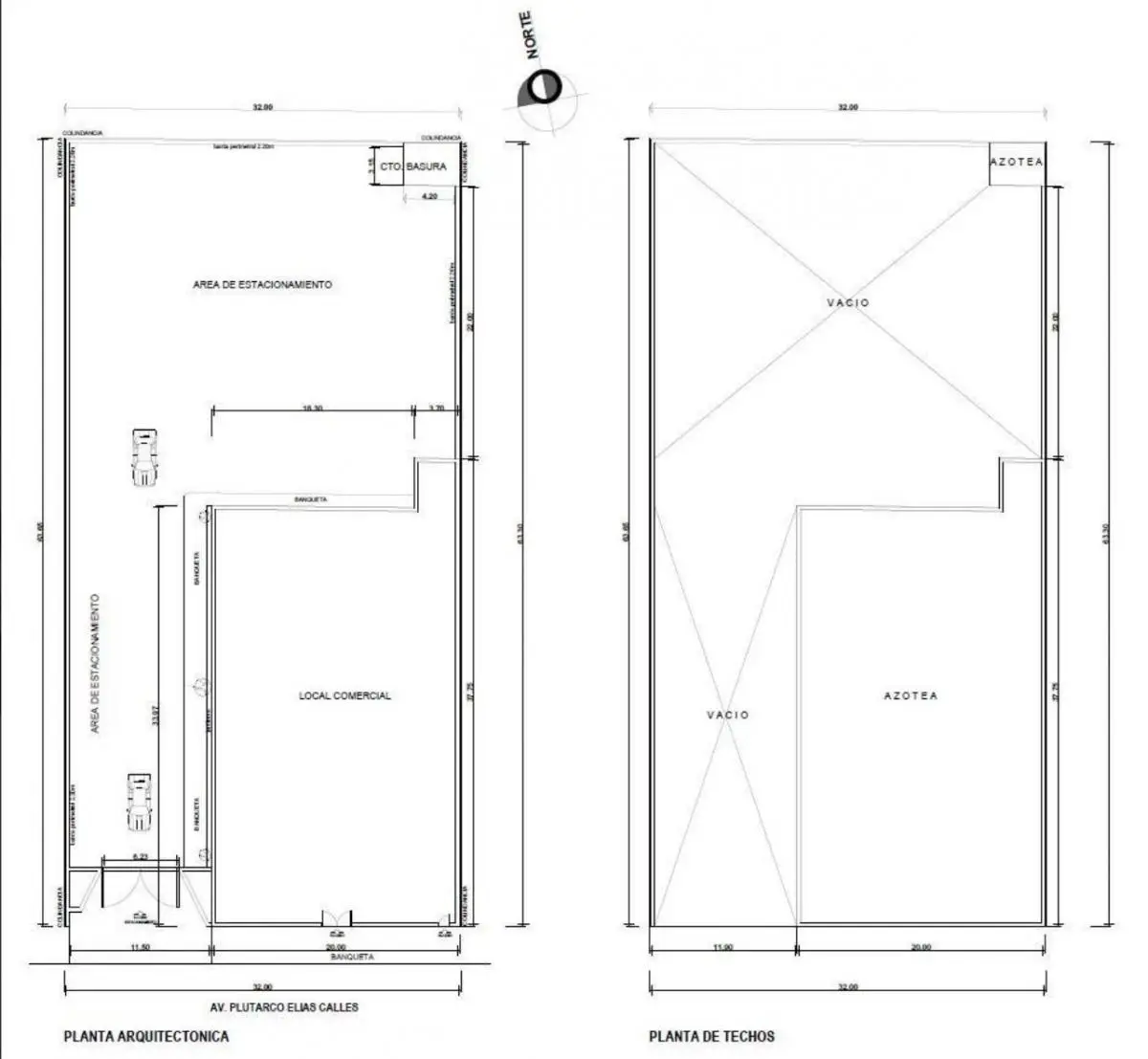
Venta de Local Comercial en Plutarcc Elias Calle
SN Granjas México CP. Ciudad de México
No hay amenidades disponibles para esta propiedad
Estamos comprometidos a salvaguardar tu información y que el trato dentro de nuestro portal sea el adecuado. Coméntanos si tuviste un problema para corregirlo.
Fotos visibles
Elige las fotos que quieres mostrar.